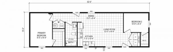
2025 Clayton
Home for Sale

Kalamazoo, MI

Return to List Back to List

Home Location

Hillcrest Acres
3225 Birch
Kalamazoo, MI 49004