Back to List
2>
Buy: $135,000
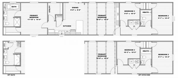
- 3

- 2

- 16 x 76 ANNIVERSA
- Danville, AL 35619
- Listed: 2 Months Ago
Additional Info
- Lot Rent: Unknown
- Utilities: Unknown
- Prop Taxes: Unknown
Home Location
651 County Road 204
Danville, AL 35619
Seller Contact
VMF Homes
Sales
8666148921
(866) 614-8921
www.vmfhomes.com
Send Email to Seller
Home Description
View More
Search