Back to List
2>
- Listed: 2 Months Ago
- Serial # JHW10113TX26
Additional Info
- Lot Rent: Unknown
- Utilities: Unknown
- Prop Taxes: Unknown
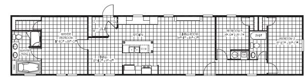
Home Details
| Oven | Refridgerator | Dishwasher |
Home Location
Estrella Ranch
Tbd
Katy, TX 77493
Seller Contact
Estrella Ranch
Burdette Huffman
11111111
(111) 111-11
Send Email to Seller
Home Description
View More
Search

