Back to List
2>
- Listed: 2 Months Ago
- Serial # na
Additional Info
- Lot Rent: Unknown
- Utilities: Unknown
- Prop Taxes: Unknown
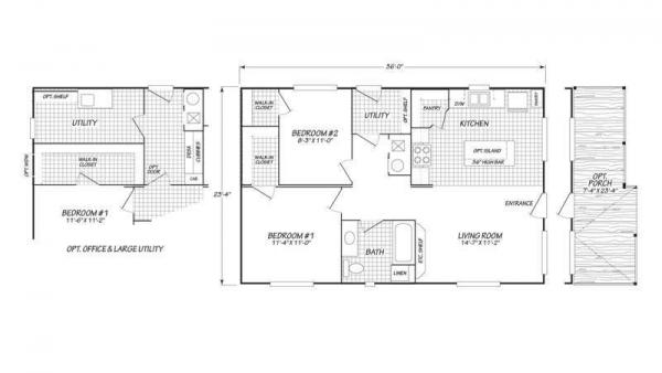
Home Details
| Carport | Storage Shed | Oven | Refridgerator | Dishwasher |
Home Location
Rolling Hills | A Medallion Community
208 Darlington Way
Layton, UT 84041
Seller Contact
Rolling Hills Estates
Rachel Anderson
8018253862
(801) 825-3862
Send Email to Seller
Home Description
View More
Search

