Back to List
2>
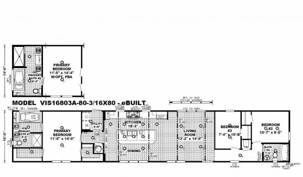
Buy: $134,900
- 3

- 2

- 16 x 80 THE SEASI
- Guin, AL 35563
- Listed: 2 Months Ago
Additional Info
- Lot Rent: Unknown
- Utilities: Unknown
- Prop Taxes: Unknown
Home Location
2132 County Highway 54
Guin, AL 35563
Seller Contact
VMF Homes
Sales
8666148921
(866) 614-8921
www.vmfhomes.com
Send Email to Seller
Home Description
View More
Search