Back to List
2>
- Listed: 2 Months Ago
- Serial # FLE240TX2450984AB
Additional Info
- Lot Rent: Unknown
- Utilities: Unknown
- Prop Taxes: Unknown
Home Location
The Crossing in Texas
913 Browning Rd Lot Br913
Wilmer, TX 75172
Seller Contact
YES! Communities - Fort Worth
Lisa Augustus
9725052476
(972) 505-2476
Send Email to Seller
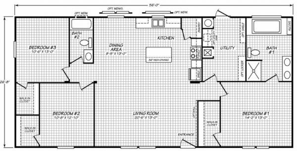
Home Description
View More
Search

